+7 (499) 110-00-36
+7 (347) 292-98-94

ЭТП Альфалот
02
:
18
:
27
мск
время сервера

Лот 0033125004DS.lot11 | 208 500.00 руб.

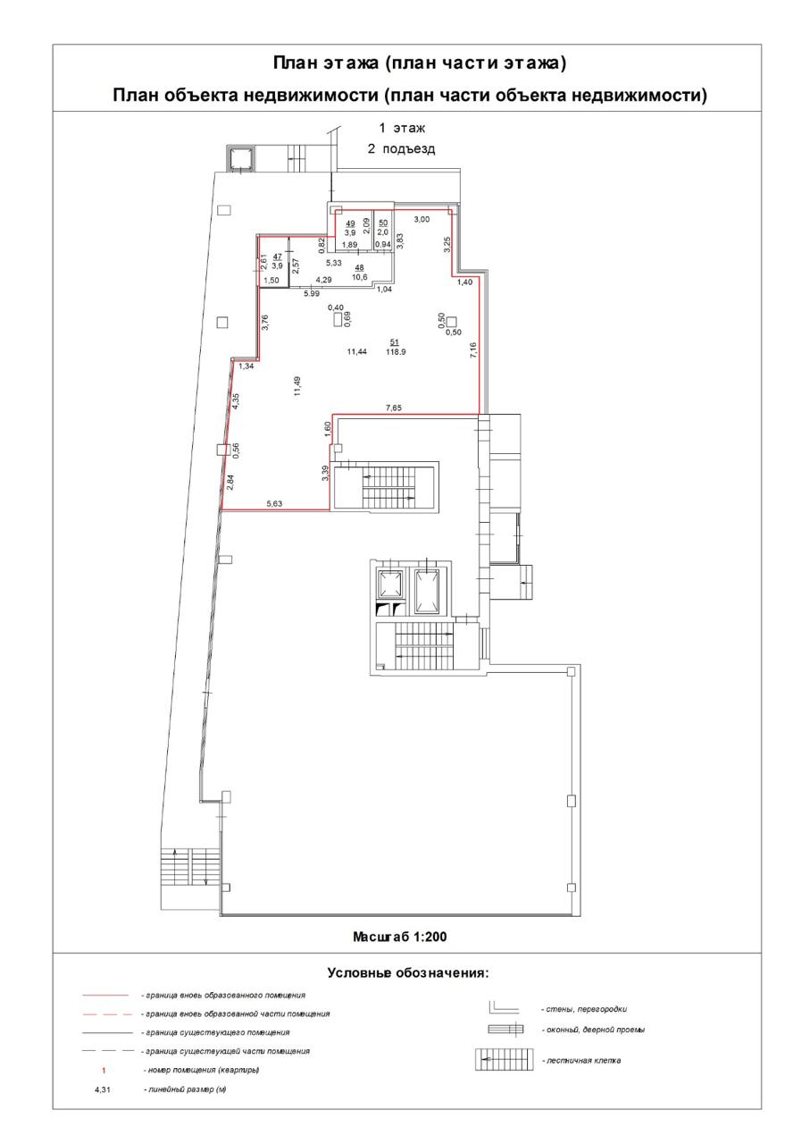
Право на заключение договора аренды нежилого помещения общей площадью 139,3 м2 (Сто тридцать девять целых три десятых), кадастровый номер 61:44:0050631:416 , расположенного на 1 (первом) этаже в многоквартирном жилом доме по адресу: Ростовская область , г. Ростов-на-Дону, ул. Береговая д. 19/2, комнаты 1,2,3,4,5 , под деятельность , разрешенную в многоквартирном доме ( офис, магазин, салон, парикмахерская, спортзал, и т.д. ) в состоянии стройварианта, без какой-либо внутренней отделки, но с витражным остеклением, проведенной вытяжкой, а также разводкой труб в санитарном узле.

Краткие сведения лота

Организатор Индивидуальный предприниматель Бондарев Сергей Викторович
Заказчик Индивидуальный предприниматель Бондарев Сергей Викторович
Номер процедуры 0033125004DS
Номер лота 11
Вид торговой процедуры Продажа
Предмет договора (лота) Право на заключение договора аренды нежилого помещения общей площадью 139,3 м2 (Сто тридцать девять целых три десятых), кадастровый номер 61:44:0050631:416 , расположенного на 1 (первом) этаже в многоквартирном жилом доме по адресу: Ростовская область , г. Ростов-на-Дону, ул. Береговая д. 19/2, комнаты 1,2,3,4,5 , под деятельность , разрешенную в многоквартирном доме ( офис, магазин, салон, парикмахерская, спортзал, и т.д. ) в состоянии стройварианта, без какой-либо внутренней отделки, но с витражным остеклением, проведенной вытяжкой, а также разводкой труб в санитарном узле.
Начальная (минимальная) цена договора (лота) 208 500.00 руб. (в т.ч. НДС)
Способ проведения процедуры Аукцион на повышение
Состояние лота Работа комиссии
Требование обеспечения заявки на участие
Размер обеспечения заявки: 208 500.00 руб.
Способы внесения обеспечения заявки:
Иные требования к обеспечению заявки: В соответствии с документацией.
Дополнительная информация о лоте При заключении договора аренды, Арендатор обязан внести аванс, равный 4 (четырем) месячным арендным платам и сумме обеспечительного платежа, за счет которых Арендодатель обязуется провести базовый ремонт помещения (строительные работы по электрике, сантехнике, плиточному покрытию, чистовой отделке стен) в течение 60 календарных дней. Настоящий Договор не включает затраты Арендатора на корпоративный ремонт (фирменный стиль) Срок аренды помещения начинается через 90 дней со дня перечисления Арендратором арендной платы , равной 4 (четырем) месячным арендным платам и сумме обеспечительного платежа . Срок действия договора 5 лет Техническое обслуживание и коммунальные услуги оплачиваются дополнительно. В многоквартирном жилом доме предоставляются в аренду поздемные паркинг места за дополнительную плату .

Этапы проведения лота

Наименование Дата и время
Основной
Завершен прием заявок
Начало подачи заявок 29 сен 2025 08:00 МСК
Окончание подачи заявок 27 окт 2025 18:00 МСК
Рассмотрение заявок 28 окт 2025 18:00 МСК
Начало проведения торгов 29 окт 2025 09:00 МСК
Режим проведения торгов
Время ожидания ценового предложения
1 ч.
Прием ценовых предложений КРУГЛОСУТОЧНО
Шаг торгов
В соответствии с торговой документацией

Сообщения

Наименование Номер редакции Дата размещения Перечень файлов
Извещение о проведении продажи №1 (действующая) 26 сен 2025

Изображения лота скачать

WhatsApp Image 2024-10-18 at 13.24.59(1).jpeg
WhatsApp Image 2024-01-19 at 18.43..jpeg
WhatsApp Image 2024-01-19 at 18.43.27(1).jpeg
WhatsApp Image 2024-01-19 at 18.43.27(2).jpeg
WhatsApp Image 2024-01-19 at 18.43.27(5).jpeg
WhatsApp Image 2024-01-19 at 18.43.27(6).jpeg
WhatsApp Image 2024-01-19 at 18.43.27.jpeg
WhatsApp Image 2024-01-19 at 18.43.27-.jpeg
WhatsApp Image 2024-10-18 at 13.24.51.jpeg
WhatsApp Image 2024-10-18 at 13.24.52.jpeg
WhatsApp Image 2024-10-18 at 13.24.58(1).jpeg
WhatsApp Image 2024-10-18 at 13.24.58.jpeg
WhatsApp Image 2024-10-18 at 13.24.59(1).jpeg
WhatsApp Image 2024-10-18 at 13.24.59(2).jpeg
WhatsApp Image 2024-10-18 at 13.24.59.jpeg
WhatsApp Image 2024-10-23 at 13.01.43(1).jpeg
WhatsApp Image 2024-10-23 at 13.01.43(2).jpeg
WhatsApp Image 2024-10-23 at 13.01.43.jpeg
WhatsApp Image 2024-10-23 at 13.01.44(1)(1).jpeg
WhatsApp Image 2024-10-23 at 13.01.44(1).jpeg
WhatsApp Image 2024-10-23 at 13.01.44(2).jpeg
WhatsApp Image 2024-10-23 at 13.01.44.jpeg
WhatsApp Image 2024-10-23 at 13.01.45(1).jpeg
WhatsApp Image 2024-10-23 at 13.01.45(2).jpeg
Аренда 2024-образец-Береговая(1)-01.jpg
Аренда 2024-образец-Береговая(1)-02.jpg
Аренда 2024-образец-Береговая(1)-03.jpg
Аренда 2024-образец-Береговая(1)-04.jpg
Аренда 2024-образец-Береговая(1)-05.jpg
Аренда 2024-образец-Береговая(1)-06.jpg
Аренда 2024-образец-Береговая(1)-07.jpg
Аренда 2024-образец-Береговая(1)-08.jpg
Аренда 2024-образец-Береговая(1)-09.jpg
Аренда 2024-образец-Береговая(1)-10.jpg
Аренда 2024-образец-Береговая(1)-11.jpg
Аренда 2024-образец-Береговая(1)-12.jpg
Аренда 2024-образец-Береговая(1)-13.jpg
Аренда 2024-образец-Береговая(1)-14.jpg
Аренда 2024-образец-Береговая(1)-15.jpg
Аренда 2024-образец-Береговая(1)-16.jpg
Аренда 2024-образец-Береговая(1)-17.jpg
Аренда 2024-образец-Береговая(1)-18.jpg
Аренда 2024-образец-Береговая(1)-19.jpg
Аренда 2024-образец-Береговая(1)-20.jpg
Аренда 2024-образец-Береговая(1)-21.jpg
Аренда 2024-образец-Береговая(1)-22.jpg
WhatsApp Image 2024-10-23 at 13.01.44(1)(1).jpeg