+7 (499) 110-00-36
+7 (347) 292-98-94

ЭТП Альфалот
09
:
03
:
47
мск
время сервера

Лот 0033125005DS.lot6 | 36 500 000.00 руб.

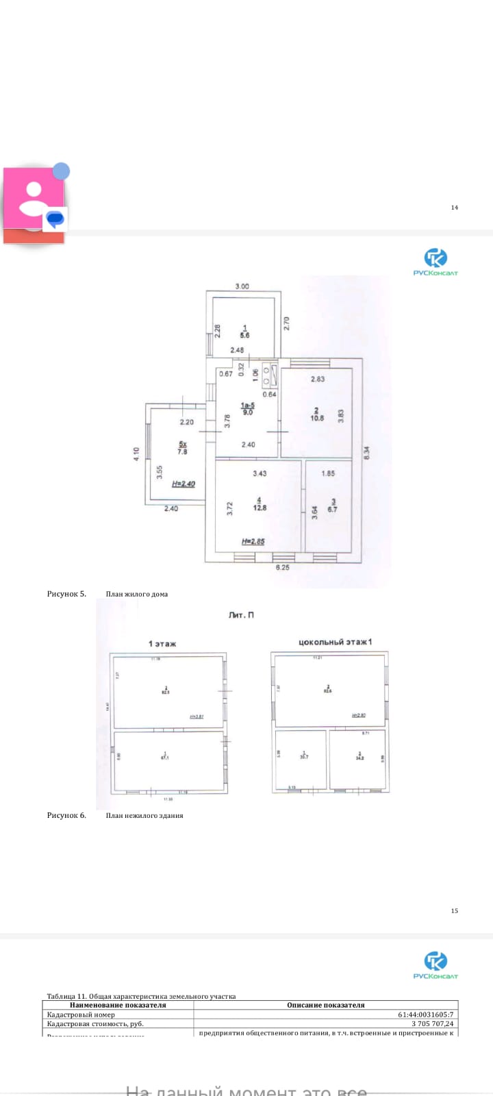
Продается одним лотом объекты по адресу: Ростовская область, г.Ростов-на-Дону ул.Кизлярская д.7/3 : -Земельный участок Категория земель: земли населенных пунктов -предприятия общественного питания , в т.ч. встроенные и пристроенные к зданиям иного назначения. Площадь 356 кв.м. Кадастровый номер 61:44:0031605:7. -Нежилое здание, Площадь 297,1 кв.м. Кадастровый номер 61:44:0031605:18 -Жилой дом, площадью 44,9 кв.м. , в том числе жилой 30,3 кв.м. Литер А этажность 1; летняя кухня площадью 21,2 кв.м. , Литер М Этажность 1, Сарай площадью 6,9 кв.м. Литер Н Этажность 1, Площадь 73 кв.м. Кадастровый номер 61:44:0031605:15

Краткие сведения лота

Организатор Индивидуальный предприниматель Бондарев Сергей Викторович
Заказчик Индивидуальный предприниматель Бондарев Сергей Викторович
Номер процедуры 0033125005DS
Вид торговой процедуры Продажа имущества
Номер лота 6
Предмет договора (лота) Продается одним лотом объекты по адресу: Ростовская область, г.Ростов-на-Дону ул.Кизлярская д.7/3 : -Земельный участок Категория земель: земли населенных пунктов -предприятия общественного питания , в т.ч. встроенные и пристроенные к зданиям иного назначения. Площадь 356 кв.м. Кадастровый номер 61:44:0031605:7. -Нежилое здание, Площадь 297,1 кв.м. Кадастровый номер 61:44:0031605:18 -Жилой дом, площадью 44,9 кв.м. , в том числе жилой 30,3 кв.м. Литер А этажность 1; летняя кухня площадью 21,2 кв.м. , Литер М Этажность 1, Сарай площадью 6,9 кв.м. Литер Н Этажность 1, Площадь 73 кв.м. Кадастровый номер 61:44:0031605:15
Начальная (минимальная) цена договора (лота) 36 500 000.00 руб. (в т.ч. НДС)
Способ проведения процедуры Аукцион на повышение
Состояние лота Работа комиссии
Требование обеспечения заявки на участие
Размер обеспечения заявки: 1 825 000.00 руб.
Способы внесения обеспечения заявки:
Иные требования к обеспечению заявки: В соответствии с документацией.

Особенности проведения

Электронная подпись (для участия) Обязательна

Этапы проведения лота

Наименование Дата и время
Основной
Завершен прием заявок
Начало подачи заявок 24 ноя 2025 08:00 МСК
Окончание подачи заявок 24 дек 2025 18:00 МСК
Рассмотрение заявок 25 дек 2025 18:00 МСК
Начало проведения торгов 26 дек 2025 12:00 МСК
Режим проведения торгов
Время ожидания ценового предложения
1 ч.
Прием ценовых предложений КРУГЛОСУТОЧНО
Шаг торгов
от 182 500.00 руб. до 1 825 000.00 руб.

Сообщения

Наименование Номер редакции Дата размещения Перечень файлов
Извещение о проведении продажи №1 (действующая) 23 ноя 2025

Изображения лота скачать

Фото2025-11-23 at 21.56.04.jpeg
Фото 2025-11-23 at 21.55.59.jpeg
Фото 2025-11-23 at 21.55.09.jpeg
Фото 2025-11-23 at 21.55.07.jpeg
Фото 2025-11-23 at 21.55.05.jpeg
Фото Image 2025-11-23 at 21.55.02.jpeg
Фото 2025-11-23 at 21.54.30.jpeg
Фото 2025-11-23 at 21.54.13.jpeg
Фото 2025-11-23 at 21.56.06(1).jpeg
Фото 2025-11-23 at 21.56.06.jpeg
Фото 2025-11-23 at 21.56.05(1).jpeg
Фото 2025-11-23 at 21.56.05.jpeg
Фото2025-11-23 at 21.56.04.jpeg